Price £325,000 - New Instruction


  • Victorian bay fronted
  • NO ONWARD CHAIN
  • 13ft living room
  • 12ft dining room
  • 14ft modern kitchen
  • 13ft master bedroom
  • 12ft second bedroom
  • 13ft third bedroom
  • Walking distance of Reading town centre

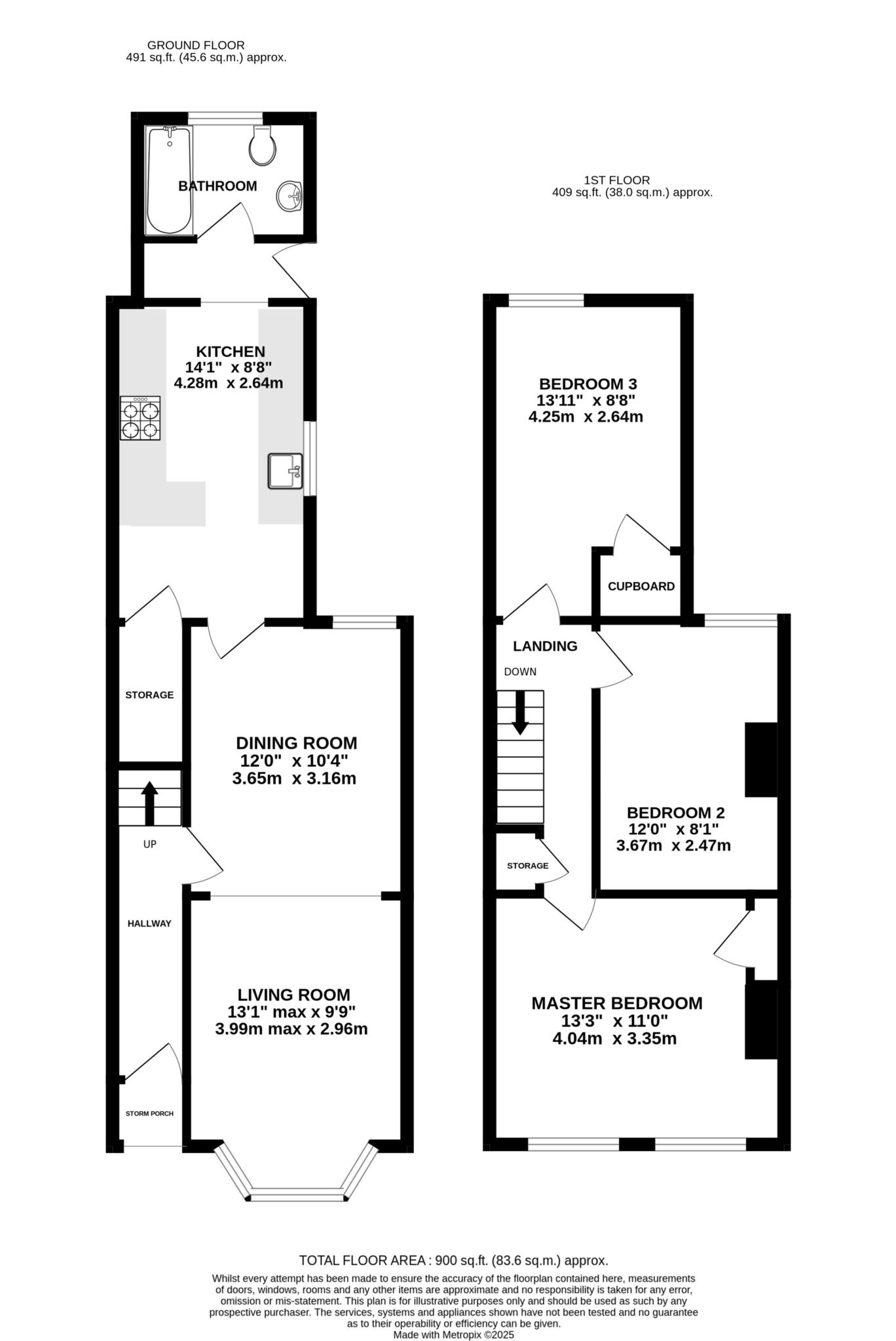
Masons are proud to offer to the market this bay fronted, three bedroom Victorian terrace family home situated within walking distance of Reading West train station, a plethora of local amenities and Reading town centre. Offered for sale with NO ONWARD CHAIN, the accommodation comprises of a 13ft bay fronted living room, a 12ft dining room, a 14ft modern kitchen, a family bathroom, a 13ft master bedroom, a 12ft second bedroom and a 13ft third bedroom. Further benefits include gas central heating, UPVC double glazing, a fully enclosed rear garden and potential for extension/conversion subject to the necessary planning consents. VIEWING RECOMMENDED.

Front door opens into the hallway which boasts stairs to the first floor landing and a door to...

Dining Room:
12' x 10'4"
Double glazed with a rear aspect, door to the kitchen and an opening to the...

Living Room:
13'1" max x 9'9"
Bay fronted and double glazed.

Kitchen:
14'1" x 8'8"
Double glazed with a side aspect, fitted with a range of eye and base level units with roll edge tops and tiled surround, farmhouse sink, integrated fridge/freezer, dishwasher, oven and hob with extractor above and space for further appliances. An opening from the kitchen leads to a hallway which boasts a door to the garden and a door to...

Bathroom:

Double glazed with a rear aspect, fitted with a bath with overhead shower, low level WC and hand wash basin.

The first floor landing boasts a storage cupboard and doors to...

Master bedroom:
13'3" x 11'
Twin double glazed with a front aspect, chimney breast and wardrobe/cupboard.

Bedroom 2:
12' x 8'1"
Double glazed with a rear aspect and chimney breast.

Bedroom 3:
13'11" x 8'8"
Double glazed with a rear aspect and a built in storage cupboard.

Outside:

To the rear the garden is mainly laid with lawn and patio, enclosed by timber fencing. To the front the property boasts a small garden and a path leading to the front door, all of which is enclosed by timber fencing.



Council Tax
Reading Borough Council, Band C

Notice
Whilst every care has been taken in the preparation of these particulars, and they are believed to be correct, they are not warranted and intending purchasers/lessees should satisfy themselves as to the correctness of the information given.Please note we have not tested any apparatus, fixtures, fittings, or services. Interested parties must undertake their own investigation into the working order of these items. All measurements are approximate and photographs provided for guidance only.

Floor Plan
EER Chart

The Energy-Efficiency Rating is a measure of a home's overall efficiency. The higher the rating, the more energy-efficient the home is, and the lower the fuel bills are likely to be.

Utility Supply Type
Electric Mains Supply
Gas Mains Supply
Water Mains Supply
Sewerage Mains Supply
Broadband Unknown
Telephone Landline

Other Items Description
Heating Gas Central Heating
Garden/Outside Space Yes
Parking No
Garage No

Broadband Coverage Highest Available Download Speed Highest Available Upload Speed
Standard 8 Mbps 0.9 Mbps
Superfast 256 Mbps 39 Mbps
Ultrafast 1800 Mbps 1000 Mbps

Mobile Coverage Indoor Voice Indoor Data Outdoor Voice Outdoor Data
EE Likely Likely Enhanced Enhanced
Three Likely Likely Enhanced Enhanced
O2 Enhanced Enhanced Enhanced Enhanced
Vodafone Enhanced Enhanced Enhanced Enhanced

Broadband and Mobile coverage information supplied by Ofcom.


marker icon